|
iQ500 SIEMENS Placa de inducción con extractor integrado 80 cm sin perfiles
Descripción
SIEMENS iQ500 · Placa de inducción con extractor integrado 80 cm · combiInducción · touchSlider
Referencia: ED851HQ26E
La Siemens iQ500 ED851HQ26E es una placa de inducción con extractor integrado de 80 cm, diseñada para quienes buscan eficiencia, silencio y una cocina visualmente despejada. Con combiInducción, control touchSlider, extractor iQdrive™ silencioso y conectividad Home Connect, combina flexibilidad, potencia y un uso extremadamente intuitivo.
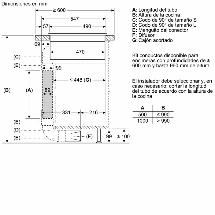
📏 Medidas y encastre (en cm)
| Tipo | Medida |
|---|---|
| Dimensiones de instalación (alto × ancho × fondo) | 22,3 × 80,2 × 52,2 cm |
| Medidas del producto embalado | 43,1 × 95 × 67,2 cm |
| Altura mínima del hueco | 49 cm |
| Altura máxima del hueco | 49 cm |
| Anchura del hueco | 75 cm |
| Fondo del hueco | 22,3 cm |
| Altura sobre la encimera | 0,6 cm |
| Peso neto | 31 kg |
| Ancho de la placa | 80 cm |
✨ Tecnología SIEMENS destacada
| Función | Beneficio |
|---|---|
| combiInducción | Une dos zonas para recipientes grandes |
| Control touchSlider | Ajuste preciso deslizando un dedo |
| Extractor iQdrive™ | Alta potencia con mínimo ruido |
| Potencia máxima 622 m³/h | Extracción eficaz incluso en modo intensivo |
| Fácil limpieza | Sistema del módulo de extracción fácil de desmontar |
| powerBoost en todas las zonas | Aumento de potencia inmediato |
| 4 zonas de inducción | Flexibilidad total para cocinar |
| Home Connect | Control remoto y diagnóstico |
🏡 Ventajas destacadas
| Ventaja | Beneficio para ti |
|---|---|
| 4 zonas de inducción | Cocina varios platos simultáneamente |
| combiInducción | Ideal para parrillas, planchas y recipientes XXL |
| Extractor integrado | Cocina sin humos sin necesidad de campana |
| Nivel intensivo 622 m³/h | Limpieza de aire muy rápida |
| Funcionamiento silencioso | Máximo confort acústico |
| Indicador de saturación de filtros | Mantenimiento sencillo |
| Conectividad | Control desde el móvil con Home Connect |
| Seguridad avanzada | Bloqueo infantil, autoapagado, sensores |
💡 Ventaja clave
La iQ500 ED851HQ26E destaca por su combiInducción flexible, su extractor silencioso iQdrive™, y la experiencia intuitiva del touchSlider, creando una placa elegante y eficiente ideal para cocinas modernas sin instalación de campana tradicional.
Archivos
Compartir este producto
EX875LX67E
|
SIEMENS
iQ700 SIEMENS Placa de inducción con extractor integrado 80 cm con perfiles
€2.698,99
EX851HJ26E
|
SIEMENS
iQ700 SIEMENS Placa de inducción con extractor integrado 80 cm sin perfiles
€2.165,99
También podría interesarte uno de estos
Productos recomendados
EX851HJ26E
|
SIEMENS
iQ700 SIEMENS Placa de inducción con extractor integrado 80 cm sin perfiles
€2.165,99
EX875LX67E
|
SIEMENS
iQ700 SIEMENS Placa de inducción con extractor integrado 80 cm con perfiles
€2.698,99